調節閥
國際電工委員會 IEC 對調節閥(國外稱控制閥 Control Valve)的定義為:“工業過程控制系統中由動力操作的裝置形成的終端元件,它包括一個閥體部件,內部有一個改變過程流體流率的組件,閥體部件又與一個或多個執行機構相連。執行機構用來響應控制元件送來的信號。”可見,調節閥是由執行機構和閥體部件兩部分組成,即:
調節閥=執行機構+閥體部件+附件
其中,執行機構是調節閥的推動裝置,它按信號壓力的大小產生相應的推力,使推桿產生相應的位移,從而帶動調節閥的閥芯動作;閥體部件是調節閥的調節部份,它直接與介質接觸,通過執行機構推桿的位移,改變調節閥的節流面積,達到調節的目的。
調節閥按其能源方式不同主要分為氣動調節閥、電動調節閥、液動調節閥三大類。它們的差別在于所配的執行機構上。前者配的是氣動執行機構,中間一種配的是電動執行機構,后者配的是液動執行機構。
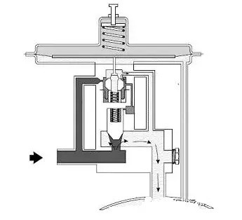
氣動調節閥剖面結構圖

調節閥在系統中的作用與重要性
調節閥在調節系統中是必不可少的,它是組成工業自動化系統的重要環節,被稱之為生產過程自動化的“手腳” 。
如圖 下圖所示:

圖1-1 自動調節系統的構成
調節閥的功能
1 、調節功能
1) 流量特性
流量特性是反映調節閥的開度與流量的變化關系,以適應不同的系統特性要求,如對流量調節系統反應速度快需對數特性;對溫度調節系統反應速度慢,需直線流量特性。流量特性反映了調節閥的調節品質。
2) 可調范圍R
可調范圍反映調節閥可控制的流量范圍,用R=Qmax:Qmin之比表示。R越大,調節流量的范圍越寬,性能指標就越好。通常閥的R=30,好的閥,如V型球閥、全功能超輕型調節閥,R可達100~200。
3) 小開度工作性能
有些閥受到結構的限制,小開度工作性能差,產生啟跳、振蕩,R變得很小 (即Qmin很大),如雙座閥、襯膠蝶閥。好的閥小開度應有微調功能,即可滿足很小流量的調節,且工作又要求十分平衡,這類閥如V型球閥、偏心旋轉閥、全功能超輕型調節閥。
4) 流量系數Cv或Kv
流量系數表示通過流量的能力,同口徑Kv值越大越好,尤其是球閥、蝶閥,它們的Cv/Kv值是單座閥、雙座閥、套筒閥的2~3倍。
5) 調節速度
滿足系統對閥動作的速度要求。
2 、切斷功能
切斷功能由閥的泄漏量指標來表示,切斷通常指泄漏量小于0.001%,它反映閥的內在的質量。在閥的使用中,對國產閥泄漏量大的呼聲反映很大。
3 、克服壓差功能
它通常用閥關閉時的允許壓差來表示,允許壓差越大,此功能也就越好。如果考慮不周到,閥芯就會被壓差頂開,造成閥關不到位,泄漏量超標。因此,保證閥切斷就必須克服閥關閉時的工作壓差。
4、 防堵功能
對不干凈介質的調節或者即使是干凈介質,管道中的焊渣等雜物都可能造成閥堵塞或被卡住,因此要求閥應有較好的防堵功能,使之正常調節。防堵性好的是流路簡單的單座角閥和旋轉類閥,如球閥、蝶閥、偏心閥;流路復雜的閥、上下襯套導向的閥,迷宮式多級降壓閥易造成堵卡。
5、 耐蝕功能
抵抗介質的腐蝕和沖蝕和氣蝕,以提高閥的使用壽命。閥的腐蝕是由介質的化學性能引起的材質腐蝕問題,通常選用耐腐蝕的材料來解決;沖蝕是由高速流動的介質、含顆粒的 介質所致。解決的途徑是選用耐磨的材料,如堆焊斯泰萊合金或碳化鎢。氣蝕則要在機構結構上采用反汽蝕措施,對高壓閥、大壓差工作的調節閥 要采用多級降壓的形式。
6 、耐壓功能
它反映閥的強度和安全指標,即介質不能通過密封處和閥體缺陷處向外滲漏。出廠時通常用1.5倍公稱壓力作試驗來檢驗。對高壓介質好是采用鍛件結構;鑄鐵閥的耐壓強度是低的,通常應選鑄鋼閥。
7 、耐溫功能
滿足不同溫度條件下閥的強度和性能,溫度的較大變化會使閥體材質的強度降低,因此閥必須滿足介質的溫度變化范圍的要求,使閥在工作溫度下有較好的強度和安全保證。
8 、外觀和重量
反映閥的外觀質量且要求儀表化、輕型化、小型化。其重量應越輕越好,以方便使用,如起吊、安裝、維護等。
各類調節閥的功能優劣比較
| 九大類產品/功能 | 調節 | 切斷 | 克服壓差 | 防堵 | 耐蝕 | 耐壓 | 耐溫 | 重量 | |
| 直 | 單座閥 | √ | 0 | × | 0 | √ | √ | √ | × |
| 雙座閥 | √ | × | √ | × | 0 | √ | √ | × | |
| 套筒閥 | √ | 0 | √ | × | 0 | √ | √ | × | |
| 角形閥 | √ | 0 | × | 0 | √ | √ | √ | × | |
| 三通閥 | √ | 0 | × | × | × | √ | √ | × | |
| 隔膜閥 | × | √ | × | √ | 0 | × | × | × | |
| 角 | 蝶閥 | √ | √ | × | √ | 0 | √ | √ | √ |
| 球閥 | √ | √ | √ | √ | √ | √ | √ | × | |
| 偏心旋轉閥 | √ | √ | √ | √ | √ | √ | √ | × | |
符號說明:“√”表示佳;“0”表示基本可以;“×”表示差。
調節閥性能指標
依據氣動調節閥的國標:GB/T4213-92,共計14個性能指標:
1基本誤差;2回差;3死區;4始終點偏差;5額定行程偏差;6泄漏量;7填料函及其它連接處的密封性:8氣室的密封性;9耐壓強度;10額定流量系數;11固有流量特性;12抗振動性;13動作壽命;14外觀。
對調節閥氣源和環境溫度的要求
氣源應為清潔、干燥的空氣,不含有明顯的腐蝕性氣體、溶劑或其他液體。帶定位器的調節閥,其氣源所含固體微粒數量應少于0.1g/m,且微粒直徑應大于3μm,含油量應小于1ppm。
定位器氣源不干凈是造成定位器工作不正常的主要原因,占故障率的2/3以上,應特別注意這一點。
調節閥環境溫度為-25~+55℃或-40~+70℃。
調節閥工作時應滿足上述要求。
波紋管調節閥
有毒性、易揮發或貴重的流體不允許其泄漏時、高真空應用時或按環保清新空氣要求(EPA、TA-Luft認證)時,以及核工業、石化等領域的特殊應用時,不能用徑向環縫的填料密封,使用金屬波紋管密封來實現“零泄漏”要求。
控制閥波紋管密封是應用波紋管組件,將其下端通常是焊接固定在閥桿上,上端固定在延長閥蓋上并被壓緊密封,為閥桿與閥內的過程介質之間提供一個可軸向變形的金屬隔離套,形成動密封,以實現閥桿處的“零泄漏”,而且閥桿提升動作無摩擦。輔助常規的閥桿填料后備被作為雙重保護,以防止萬一波紋管破裂或失效時產生外漏。一般都設計有泄漏檢查接口,必要時也可利用這個接口注入密封液/隔離液,也可以安裝泄漏開關/傳感器。
金屬波紋管(Metal bellows)是一種彈性、薄壁、有多個橫向波紋的管殼零件(以下簡稱波紋管),可制成單層或多層。
波紋管有三種制造方法:機械成形、液壓成形、焊接。
用機械成形方法制造的波紋管,其波紋是在金屬薄壁管上用旋轉工具或模具單個波紋連續地加工成形,可根據需要制成單層或多層波紋管。管材一般選不銹鋼材料的冷拔薄壁管(無縫管)和用薄板卷焊成的薄壁管(焊縫管),這也是影響波紋管使用壽命和效果的重要因素。由軋制帶材、板材經熔融焊接的薄壁管(焊縫管)制成的波紋管要明顯強于無縫薄管(無縫管)制成的波紋管,循環壽命有數量級之差。
應用液壓成形方法制造的波紋管,是將金屬薄壁管裝在模具中,從其內部施加液壓,同時軸向壓縮金 屬管而制造出波紋管。管材選用同于機械成形方法,也是選用冷拔薄壁管和用薄板卷焊成的薄壁管應用焊接方法制造的波紋管,是將多個環形彈性金屬膜片的外邊緣和內邊緣分別交替地焊接在一起制成波紋管。
對于機械成形的U型波紋管,每個波紋比焊接波紋管的單個旋圈要占用更多空間高度,在相同位移(行程)下要比焊接波紋管的長度大得多,約3倍左右,需要的延長閥蓋更長。但U型波紋不會像焊接波紋管那樣容易將工藝物料殘留在褶皺層內,強度也大,耐壓力高,循環壽命也比較長。
在全行程,工作壓力和溫度下,焊接型波紋管密封的循環壽命為1萬次,額定循環壽命都在10萬次循環次數以上。
波紋管主要性能
1、剛度
波紋管的剛度是使波紋管產生單位位移所需要的力,按載荷與位移性質不同可有軸向剛度、彎曲剛度、扭轉剛度等,在實際應用中重要的是軸向剛度。對于軸向剛度,是反映波紋管靈敏度的一個參數,剛度越大靈敏度越差。軸向剛度也與波紋數成反比。
2、位移
波紋管的位移是其壓緊位移和伸張位移之和,與其波紋數成正比(單波紋位移乘以波紋總數等于總位移),有大位移及允許位移兩種。大位移指波紋管在外壓力作用下,壓到波紋之間相互接觸時所能產生的大位移;
允許位移是指波紋管不產生規定塑性變形情況下所能達到的大位移。在正常使用條件下允許產生的工作位移一般是允許位移的40%-50%。
3、耐壓力
耐壓力分受內壓和外壓兩種形式,一般來講,同一波紋管在其它條件相同時,受外壓比受內壓時的穩定性要好,所以受外壓作用時的大耐壓力比受內壓時高
4、循環壽命
波紋管隨閥桿從全開到全關再到全開的移動過程稱之為一次循環,循環壽命是指波紋管在規定壓力、溫度和軸向行程下往復運動而不破壞大的循環次數。相同的波紋管的循環壽命是與其工作狀態、位移大小、循環頻次、壓力和溫度等有關。應用中的外力強扭轉、超量位移和劃傷碰傷都嚴重影響循環壽命和密封效果。
波紋管焊接在閥桿上并使其在自由松弛時為閥門行程的50%,使壓緊位移和伸張位移大體相等,可使循環壽命達到大點。大多數調節型控制閥的行程通常是在25%-75%之間的一個小范圍內變化,是在波紋管松弛點附近產生較小位移,而不是全行程動作的整個工作位移,這也能顯著延長波紋管的使用壽命,即實際循環次數要比給出的額定循環壽命要長。
5、工作溫度
工作溫度也是影響波紋管壽命的主要因素之一,不同的波紋管有不同的適用溫度范圍,但即便在要求范圍內,若越趨近于范圍上下限,越影響使用次數。
自力式調節閥
自力式控制閥無需外加動力源,只依靠被控流體的能量自行操作并保持被控變量恒定的閥。
1. 自力式調節閥又分為直接作用式和間接作用式兩種。
1)直接作用式調節閥 直接作用式調節閥又稱為彈簧負載式調節閥,其結構內有彈性元件:如彈簧、波紋管、波紋管式的溫包等,利用彈性力 與反饋信號平衡的原理。(圖A,B,C)


2)間接作用式調節閥 間接作用式調節閥,增加了一個指揮器(先導閥)它起到對反饋信號的放大作用然后通過執行 機構,驅動主閥閥瓣運動達到改變閥開度的目的。


軸流式自力式閥

氮封閥
自力式減壓閥的一種,特點就是閥后微正壓(mbar)。


減溫減壓器
分體式:結構簡單維護方便,造價低,適用低溫低壓。
一體式:結構緊湊,可靠性高,控制精度高,適用高溫高壓。

